Многокомнатная квартира 122,40 м2 по ул. Ордынский район Обская улица,20 за 6150000 руб.

Многокомнатная квартира по ул. Ордынский район, Обская улица,20 в Новосибирске
Цена 6 150 000 р. (50 245 р./м2)
Подать заявку на ипотеку
Адрес Ордынский район, Обская улица,20
Этаж 1/2
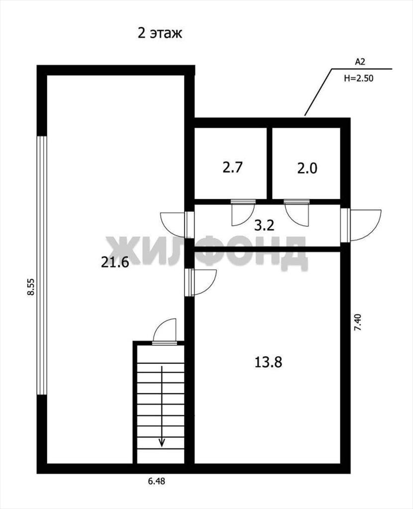
Площадь общая 122,4 м2, жилая 54,8 м2, кухни 21,6 м2
Кол-во комнат Многокомнатная
Дом по ул. Обская. Общей площадью: 122.40 кв.м. ПРЕДЛАГАЕТСЯ К ПРОДАЖЕ УНИКАЛЬНЫЙ ВАРИАНТ! ! ! РЕАЛЬНОМУ ПОКУПАТЕЛЮ ХОРОШИЙ ТОРГ! ! КВАРТИРА на земле 2019 года постройки в 2х квартирном доме. Квартира построена как 2х этажный дом, материал сибит. Утеплен и обшит сайдингом , фундамент железобетон. , вода скважина - в доме, электричество, газ центральный- заведен в дом , туалет в доме и на улице, канализация автономная. В доме погреб оборудован для хранения. Участок 11 соток в собственности на котором находятся хоз. постройки, капитальный гараж, баня, утепленная постройка для содержания животных (птиц) с печкой. Квартира находится р.п. Ордынское, это достаточно крупный поселок в 100 км, от Новосибирска, хорошая транспортная доступность, ходит рейсовый автобус и маршрутное такси, есть автовокзал, достаточно крупных и мелких предприятий, что позволяет без проблем найти работу. Вокруг живописные места, река в пяти минутых, озера. Ордынская средняя общеобразовательная школа №3, МКОУ (606 м. ) Продукты - Магазин (334 м. ) - Магазин (376 м. ) - Киоск (396 м. ) - Магазин (403 м. ) - Магазин (448 м. ) Возможен обмен на вашу недвижимость. Возможна продажа в рассрочку. При звонке, пожалуйста, сообщите номер варианта - JV005054100727
Описание дома
Этажность дома 2
Объявление № 22396730
Дата подачи:
30 мая 2025 г. 5:49
Дата обновления:
3 октября 2025 г. 18:19
Просмотров 13 Хотите продать быстрее?

Продавец
Оксана Николаевна
Показать номер телефона
Пожаловаться
Комментарии:
Добавить